Proje Açıklaması
North Steel Homes Özel Tasarım 8
Çelik yapıların avantajlarını biliyor musunuz? Geniş bir seçeneğe sahip olan yapılar hem esnek ve estetik hem de yüksek standartta kaliteye sahip.
Deprem dayanıklılığı, ısı, ses ve su yalıtımının yüksek olması, ayrıca fiyat performans avantajı sağlaması sebebiyle son dönemde oldukça yoğun talep görüyor.
Hızlı inşa edilebilir olması ve enerji tasarrufu sağlaması da diğer artı avantajlarından. Daha birçok avantajı var çelik yapının.
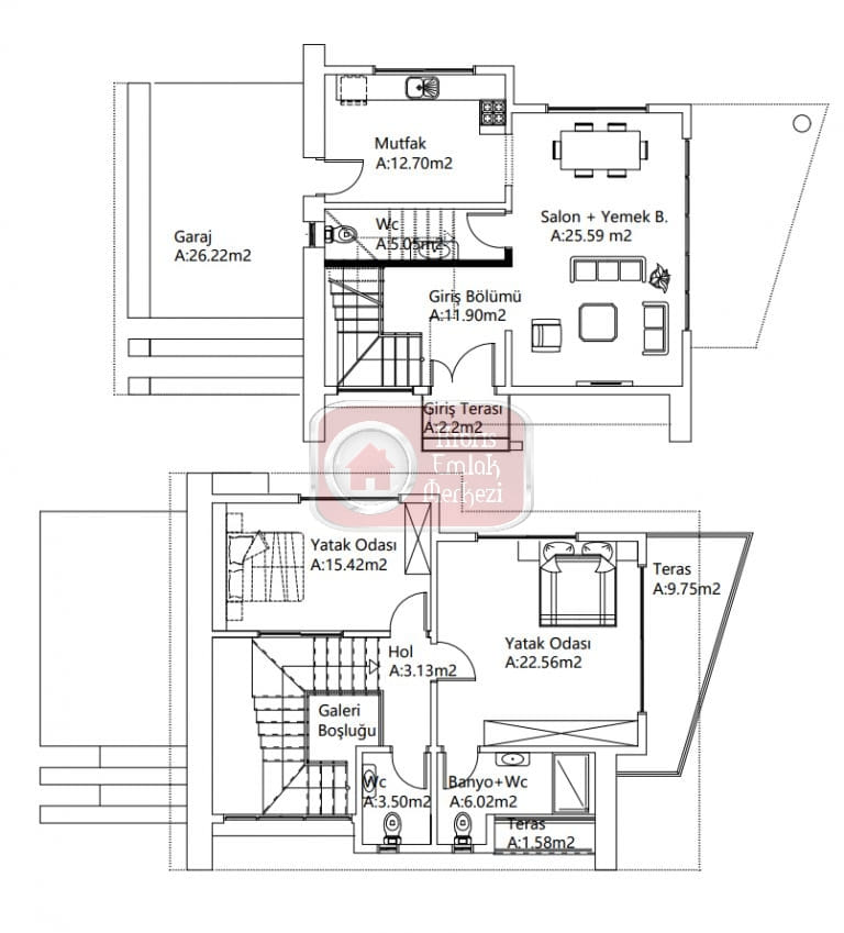
Resimde gördüğünüz tasarım projemizin özellikleri:
- Temel(Radye)
- Hafif Çelik, Ağır Çelik(İskelet)
- Dış duvar Bordex+Mantolama
- Tüm iç cephe duvarları çift kat Alçıpan
- Yalıtım mantolama+mıneralplus ısı yalıtım levhası
- £7’ e kadar seramik veya laminant parke kaplama
- Vitra+ECA Banyo ve Tuvalet
- Elektrik tesisatı KIBTEK kurallarına göre
- Mimari+Mekanik+Statik+Elektrik projeleri
- Camlar 3200 seri Alüminyum veya PVC, çift cam
- Dış çelik kapı veya MDF
- İç kapı Amerikan panel kapı
- Balkon kenar+Basamak+Denizlik doğal mermer
- High Gloss mutfak dolabı
- Çatı 5cm ısı yalıtımı+Hasır telli şap betonu+4mm membran
- 2 ton+1 ton su deposu
- Sıcak su boiler+Güneşlik+Hidrofor
- 6m pis su kuyusu+Septik tank
- Tüm su tesisatı ve bağlantıları
- Tretuvar betonu ( Bina etrafı )
Not: Bu özellikler fiyata dahildir. Arsa fiyatı hariçtir.
Örnekte gördüğünüz inşa ettiğimiz bir örnektir. Sizin isteğiniz üzerine değişiklik yapılabilir.
Projelerimiz sipariş usulü olup, teslimat süresi 6-8 ay arasındadır.
Detaylı bilgi için bize ulaşabilirsiniz.
Genç ve güçlü bir organizasyon yapısına sahip olan NORTH STEEL HOMES, her türlü hacim ve özellikteki projeyi mimarlık ve mühendislik açıdan gerçekleştirebilecek uzmanlık, deneyim ve kapasiteye sahiptir. Gerçekleştirdiğimiz projelerde kaliteyi, mesleki ahlaki değerleri ve güvenilirliği her zaman ön planda tutmaktayız.
Kaliteyi bir yaşam biçimi olarak benimsemek, işveren beklenti ve isteklerine projenin başından sonuna kadar her aşamada, beklentilerin ötesinde bir kalite düzeyi yanı sıra ekonomik ve hızlı şekilde yanıt vermek temel ilkelerimizi oluşturmaktadır.
NORTH STEL HOMES, kuruluşundan bugüne endüstriyel tesisler, fabrika binaları, villalar, konut inşaatları, yönetim binaları, ofis katları gibi birçok alanda mühendislik, mimarlık hizmetleri vererek, çok sayıda projeyi başarıyla tamamlamış güçlü ve deneyimli bir organizasyona sahiptir.
Proje aşamasında bilgisayar destekli tasarım programları kullanarak 3 boyutlu modellemeler, renderlar ve animasyonlar yaparak bir yapının, daha proje aşamasında, bitmiş halini sanal ortamda gerçeklik boyutunda gösterme olanakları yaratıyoruz.





































































































































































